top of page
Blog / News
Search


SBA Self Storage Lending Q & A
By Garrett Byrd I recently got the pleasure to interview Nick Collins with Bank Five Nine to cover the top high-level questions regarding...
Nov 30, 2022


STORAGE UNITS DURING CHRISTMAS PREPARATIONS!
Most of us are expecting guests over the holiday season or planning a massive Christmas celebration at home, for that reason we all...
Nov 29, 2022


Six reasons why people choose self-storage over the Market! Tired of Stock market volatility?
By Ed Clement Are you tired of the stock market volatility? And having little control over the market's crazy swings up and down. Maybe...
Nov 28, 2022


Don't overpay for LAnd! two Items you must consider in order to determine the land value.
by Marc Goodin Too often land buyers are overpaying for land because they do not understand the difference between the parcel acreage and...
Nov 27, 2022


My Secret Shop Journey Continues…
I have continued my secret shop journey this month and decided to visit 8 facilities in person. I keep finding underestimations and...
Nov 22, 2022


I have the cash but not the time!
By Ed Clement There are people that would truly like to get into the self-storage business. They have done enough research to know it is...
Nov 21, 2022


Storage Authority Awards our 11TH Franchise in 2022
By Garrett Byrd A Big Welcome Aboard and Congratulations to our new Storage Authority Franchise owners. Ryan and Jennifer From New...
Nov 19, 2022


Storing for the holidays?
Managers and Store Decorations As we all know our managers are the ones taking care of the decorations and putting them up for each...
Nov 15, 2022


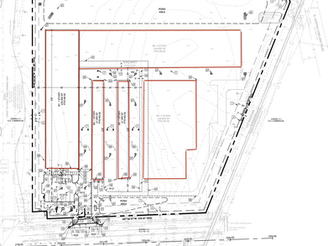
Another set of Site plans complEted! Early Spring Construction Anticipated
by Marc Goodin Storage Authority Site Plan Designs and Regulatory Reviews often go much faster than the typical reviews because we make...
Nov 13, 2022


Storage Authority Owner Interview
By Garrett Byrd Interview with our newest Storage Authority Franchise owners, Wendy & Scott H. from Tennesee. We ask our new owners now...
Nov 11, 2022


My Secret Shop Journey…
I have continued my secret shop journey this month and decided to visit 6 facilities in person. What I found was shocking and I had to...
Nov 8, 2022


I'm looking for a self-storage facility site. How important is the traffic count?
By Ed Clement Location, Location, Location. This is the single most crucial factor in the success of a self-storage business. Often...
Nov 7, 2022


Storage Authority Express is here!
Storage Authority Express Storage Authority Express is an alternative to building or buying the traditional average single facility of...
Nov 5, 2022


The 'Million Dollar' Self-Storage Desk
By Garrett Byrd The most valuable piece of real estate at your self-storage facility is the three square feet of office counter space...
Nov 4, 2022


What are the benefits of owning a Storage Authority franchise?
By Ed Clement Storage Authority is the only self-storage franchise in the United States, and we provide you with important benefits. •...
Nov 2, 2022


Preparing for THANKSGIVING at your Storage Facility?
Since Thanksgiving is right around the corner, what better way to use your marketing platforms to get creative? Even in the Storage...
Nov 1, 2022


testimonials - the lifeblood of success
by Garrett Byrd In the world of business, franchising, and advertising, testimonials are written or spoken statements that praise or...
Oct 30, 2022


Typical Land Requirements For Self-Storage Ground-Up Development Options.
By Marc Goodin Here is a very efficient Storage Authority franchise facility under design in FL. It consists of 5 buildings with 103,000...
Oct 30, 2022


How we celebrate HALLOWEEN at Storage Authority!
Since Halloween is right around the corner, what better way to use your marketing platforms to get creative? Even in the Storage...
Oct 25, 2022


Why do businesses use self-storage?
By Ed Clement Today’s businesses have many reasons to use self-storage. For example, a home-based business may use self-storage to house...
Oct 24, 2022
bottom of page






